
帰宅するたびに心が躍る、アプローチや植栽までこだわった外観デザイン。
インナーガレージと2Fリビングで外からの視線を気にせず、カーテンレスで過ごせるプライベート空間を実現。
リビングとつながるバルコニーテラスにはテントサウナを備え、浴室直結の水風呂やテラス内シャワーまで完備。
サウナーも唸る完璧な動線で“ととのう”ひとときを楽しめる。
さらに、収納付きテラスではBBQや外での食事も気軽に楽しめ、休日はまるで別荘のような暮らしを叶えた。
LDKは天井高を上げ、化粧梁が木のぬくもりを演出。
SHS様の上質な家具を採用し、落ち着きと高級感が調和するリビングに仕上がった。
ぜひご見学ください。
・延床面積:33.7坪
・敷地面積:40.0坪
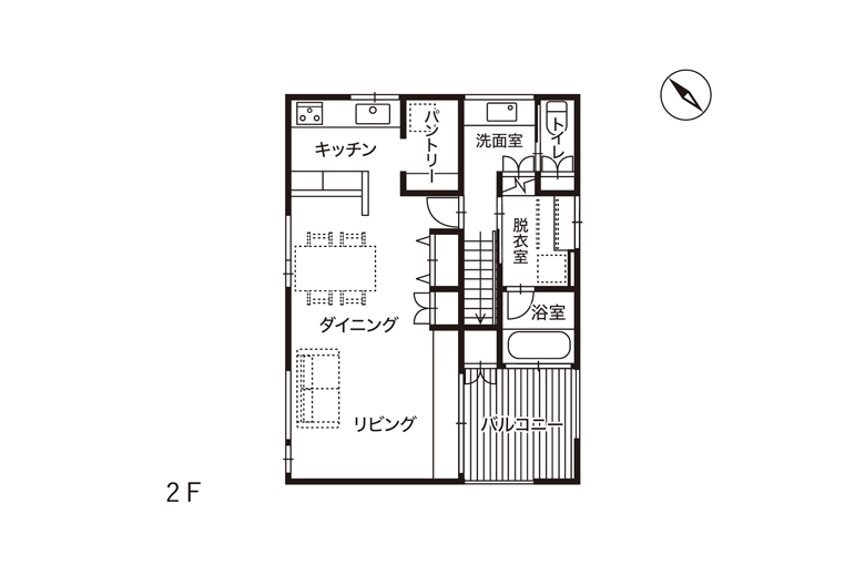
【間取り】

【見学会でよく相談される内容例】
・お金のこと
・土地選びのこと
・間取りのこと
・デザインのこと
・良質な素材と性能のこと
・新潟の気候や風土にあった設計のこと
見学会は予約制となります。
ご来場の際は事前にご予約いただきますよう、よろしくお願い申し上げます。

